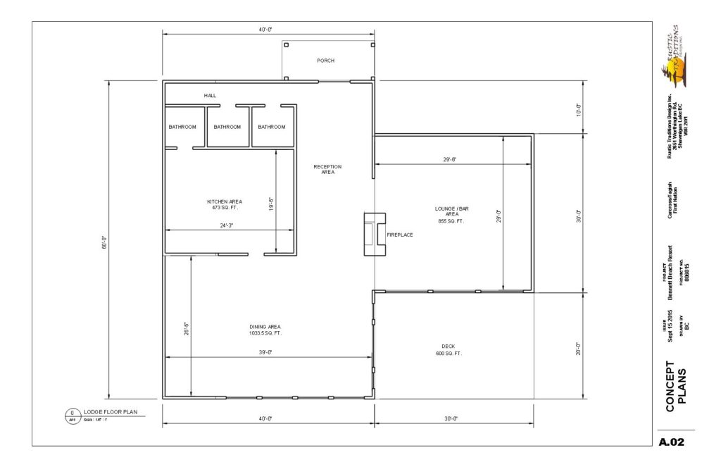
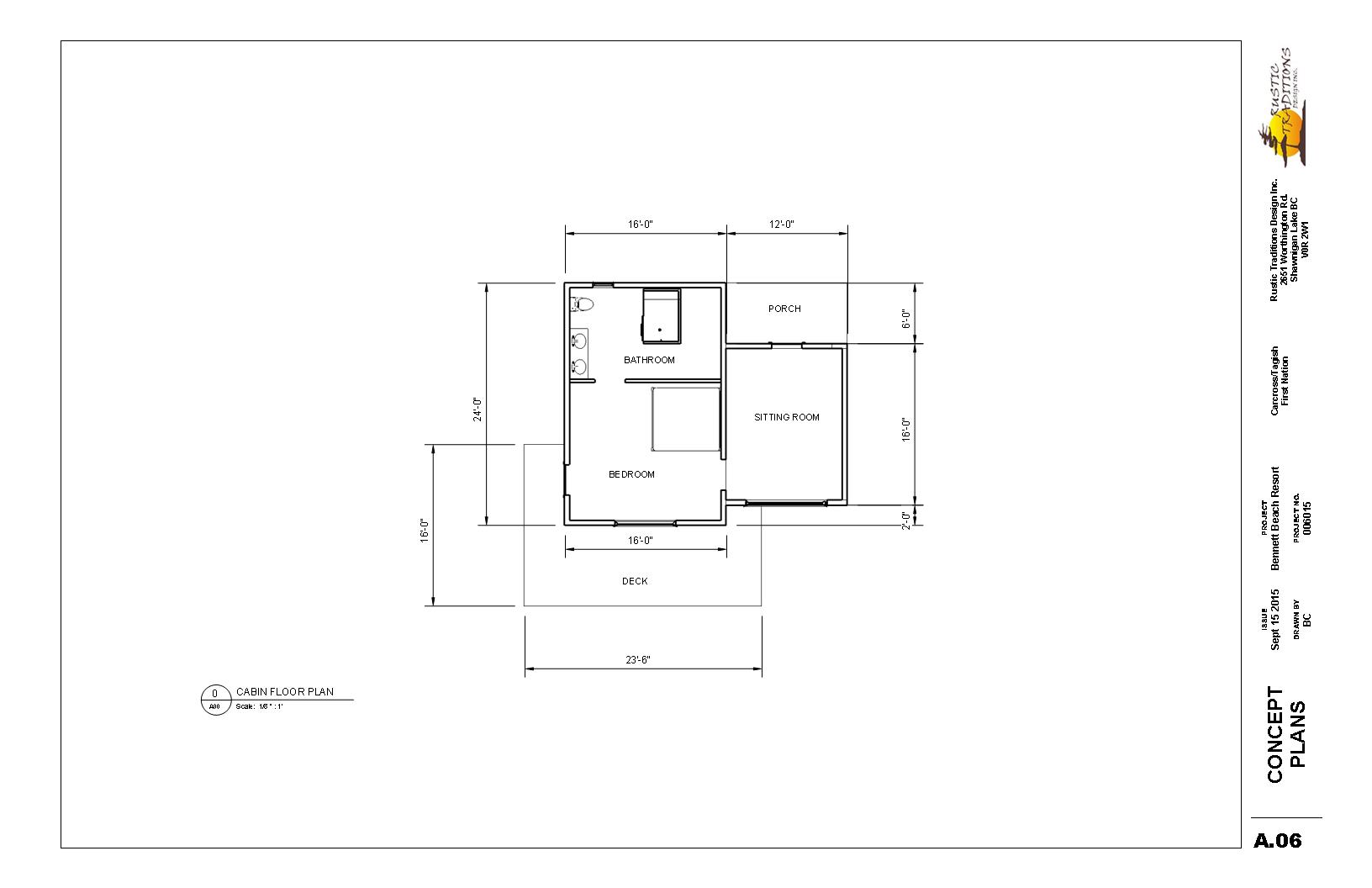
Bennett Beach Concept Plan

At the request of the Carcross-Tagish First Nation Management Corporation, Legacy Tourism Group provided a business plan and proposal regarding the design, build and operations of a multi-use, community facility that would include a small four-season resort for the Bennett Beach property just north of Carcross, Yukon.

Let's Talk Tourism!

Contact Us